案例风格 其它风格 案例户型 会所
案例面积 1000平米以上 所在楼盘 让胡路私人会所
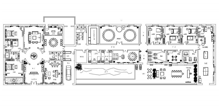
作品设计说明:
名称:私人会所
坐落地址:黑龙江省大庆市让胡路区
项目面积:1100平方米
空间性质:商务空间
设计单位:幸福人家装饰丨大宅设计中心
主案设计师:张春雷
设计时间:2016/07
使用材料:大理石、欧橡、实色混油、壁纸、文化石、乳胶漆等
依形就式、随性而发、自然而然的应运而生。静谧氛围恣意延伸,空间作为建筑房屋的灵魂和主题,在本案设计的每一方寸空间里,设计都倾注无限巧思,时时典雅,处处端庄,吸纳新东方文化的设计手法,尚承中式的秀外慧中,氛围次弟呈现,隐藏在宁静背后的咫尺繁华,置身于尘嚣之外,与都市咫尺之间。
格调,居所有物质之上
我只追崇精致生活的纯粹本质品味,居所有欲望之上
静谧才是身心最根本的需求优雅,居所有浮华之上
灯红酒绿是一场无聊的聚散
优雅才是生活的基本品质
我只需要 浮华背后的真实舒畅
